| Prijs | € 478.000,- k.k. |
| Type object | Woonhuis, eengezinswoning, hoekwoning |
| Perceeloppervlakte | 253 m² |
| Woonoppervlakte | 114 m² |
| Aanvaarding | In overleg |
| Status | Nieuw in verkoop |
Instapklare hoekwoning met garage, carport en ruime tuin op het westen ! Op een prachtige locatie tegenover een vijver, staat deze uitgebouwde en zeer goed onderhouden hoekwoning. De woning is volledig instapklaar en biedt alles wat je zoekt: een ruime en lichte woonkamer, een moderne keuken, een verzorgde tuin op het westen met veel privacy, en bovendien een garage én carport. Dankzij de gunstige ligging geniet je hier van rust, ruimte en een kindvriendelijke omgeving, terwijl voorzieningen, scholen en winkels zich op korte afstand bevinden. Kortom: een ideale gezinswoning waar je zó in kunt trekken! Pluspunten van deze woning: • Fraai uitgebouwde hoekwoning • Moderne inbouwkeuken met kookeiland • Vier volwaardige slaapkamers • Garage én carport op eigen terrein • Sfeervolle veranda en zonnige westelijke tuin • Airconditioning op de begane grond en 2e verdieping aanwezig • Gelegen in een rustige, kindvriendelijke woonwijk
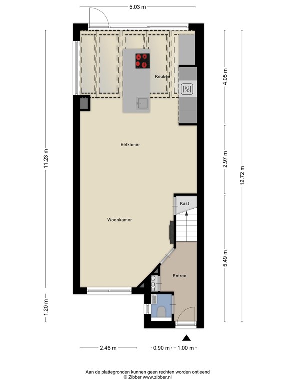
Je betreedt de woning via de hal met meterkast en trapopgang naar de eerste verdieping. De lichte woonkamer heeft een moderne uitstraling en biedt volop ruimte voor een gezellige zithoek. De open inbouwkeuken is een echte eyecatcher: strak uitgevoerd, voorzien van een kookeiland en uitgerust met diverse inbouwapparatuur. Vanuit de keuken is er directe toegang tot de achtertuin.
Op de eerste verdieping bevinden zich drie comfortabele slaapkamers en een zeer nette en strakke badkamer met een inloopdouche, vaste wastafel en een toilet. Alles is keurig afgewerkt en uitstekend onderhouden.
Deze verdieping is praktisch ingedeeld met een voorzolder voorzien van airconditioning, cv-ketelopstelling en aansluitingen voor wasmachine en droger. Daarnaast is hier een vierde slaapkamer gerealiseerd.
De fraai onderhouden en keurig aangelegde achtertuin is gelegen op het Westen. Aan de achterzijde voorzien van een garage en carport. De woning is tevens bereikbaar via een (gedeelde) poort naast de woning aan de voorzijde.
• De woning is optimaal geïsoleerd. Het dak is geïsoleerd, de spouwmuren zijn geïsoleerd evenals de begane grondvloer. De woning heeft houten kozijnen met overal dubbel glas en deels HR ++ beglazing.
• Verwarming en warm water middels een HR c.v.-combiketel (2023).
• De achterzijde van de woning op de begane grond uitgebouwd in 2018.
- Hierbij is de gehele begane grond gerenoveerd waarbij de vloer geheel vervangen is door een geïsoleerde vloer met vloerverwarming welke gebruik maakt van
restwarmte.
- Er is een airco in de woonkamer geplaatst in 2023 waarmee je kunt koelen en verwarmen.
- De uitbouw is voorzien van zonwerende filters op het raam en een zonnescherm.
In deze uitbouw is een moderne inbouwkeuken geplaatst met de volgende apparatuur:
- Stoomoven
- Combimagnetron
- Vaatwasser
- Inductiekookplaat met geïntegreerde afzuigkap (Siemens)
- Koelkast
- Quooker met een nieuwe kraan (2025)
• Er is een (magnetische) waterontharder aanwezig.
• De 2e verdieping is tevens voorzien van een airco-installatie.
• Er zijn 12 zonnepanelen aanwezig welke geplaatst zijn op de garage en carport en veranda.
• De woning is rondom voorzien van screens.
• De meterkast beschikt over 10 groepen en 3 aardlekschakelaars. | Referentienummer | 05294 |
| Vraagprijs | € 478.000,- k.k. |
| Inrichting | Niet gestoffeerd |
| Inrichting | Niet gemeubileerd |
| Status | Nieuw in verkoop |
| Aanvaarding | In overleg |
| Aangeboden sinds | Vrijdag 31 oktober 2025 |
| Type object | Woonhuis, eengezinswoning, hoekwoning |
| Soort bouw | Bestaande bouw |
| Bouwperiode | 1990 |
| Dakbedekking | Dakpannen |
| Type dak | Zadeldak |
| Keurmerken | Beveiliging Brandveiligheid |
| Isolatievormen | Ankerloze spouwmuren Dakisolatie Dubbel glas HR-glas Muurisolatie Spouwmuren Vloerisolatie Volledig geïsoleerd |
| Perceeloppervlakte | 253 m² |
| Woonoppervlakte | 114 m² |
| Woonkameroppervlakte | 30,16 m² |
| Keukenoppervlakte | 20,37 m² |
| Inhoud | 405 m³ |
| Oppervlakte externe bergruimte | 17 m² |
| Aantal bouwlagen | 3 |
| Aantal kamers | 5 (waarvan 4 slaapkamers) |
| Aantal badkamers | 1 |
| Ligging | Aan park In woonwijk Nabij school Vrij uitzicht |
| Type | Achtertuin |
| Hoofdtuin | Ja |
| Oriëntering | West |
| Heeft een achterom | Ja |
| Staat | Goed onderhouden |
| Energielabel | A |
| CV ketel | Nefit HR combiketel |
| Warmtebron | Gas |
| Bouwjaar | 2023 |
| Combiketel | Ja |
| Eigendom | Eigendom |
| Aantal parkeerplaatsen | 2 |
| Aantal overdekte parkeerplaatsen | 2 |
| Warm water | CV-ketel |
| Verwarmingssysteem | Airconditioning Centrale verwarming |
| Ventilatie methode | Mechanische ventilatie |
| Keukenvoorzieningen | Inbouwapparatuur Kookeiland |
| Badkamervoorzieningen | Inloopdouche Toilet Wastafel Wastafelmeubel |
| Parkeergelegenheid | Vrijstaande stenen garage |
| Heeft airco | Ja |
| Heeft een alarm | Ja |
| Glasvezelaansluiting aanwezig | Ja |
| Tuin aanwezig | Ja |
| Heeft een garage | Ja |
| Beschikt over een internetverbinding | Ja |
| Heeft zonnepanelen | Ja |
| Heeft ventilatie | Ja |
| Kadastrale aanduiding | Cuijk A 3663 |
| Perceeloppervlakte | 253 m² |
| Omvang | Geheel perceel |
| Eigendomsituatie | Eigen grond |