Beschrijving
Moderne tussenwoning met veranda, zonnige tuin en vrijstaande garage.
Ruimte, comfort en een ideale ligging — hier voel je je direct thuis.
In de populaire en jonge woonwijk Heeswijkse Kampen staat deze ruime tussenwoning met vrijstaande garage. De woning biedt alles wat je zoekt: een zonnige tuin op het zuiden, een fraaie veranda, volop leefruimte en alle voorzieningen om de hoek. Binnen een paar minuten lopen sta je bij de winkels, speelplekken of geniet je van de natuur en het water van De Kraaijenbergse Plassen.
Pluspunten van deze woning:
• Moderne en ruime tussenwoning.
• Sfeervolle veranda en zonnige tuin
• Vier volwaardige slaapkamers.
• Garage en eigen oprit !
• Moderne badkamer en nette keuken.
• Gelegen in een rustige, kindvriendelijke woonwijk
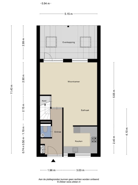
Indeling
Je komt binnen in een lichte hal met meterkast, modern toilet met fontein en de trap naar boven. De tuingerichte woonkamer is heerlijk ruim en heeft een handige provisiekast. Aan de voorzijde bevindt zich de open keuken in U-opstelling, voorzien van diverse inbouwapparaten — perfect voor wie graag kookt én gezelligheid in de keuken waardeert.
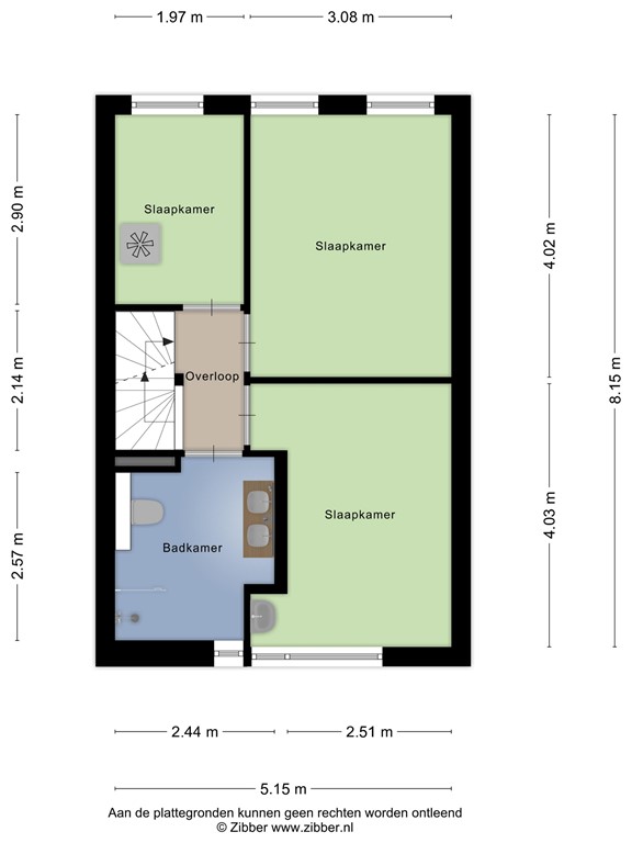
Eerste verdieping
Op de eerste verdieping vind je drie slaapkamers met veel natuurlijk licht. De recent vernieuwde badkamer is modern afgewerkt met een inloopdouche, toilet en een dubbele wastafel met badmeubel.
Tweede verdieping
De vaste trap leidt naar een ruime zolderverdieping met voorzolder, cv-installatie, aansluitingen voor wasapparatuur en een vierde slaapkamer. Deze ruimte kun je eenvoudig gebruiken als thuiswerkplek, logeerkamer of hobbyruimte.
Tuin
De achtertuin is gelegen op het Zuiden en geniet veel zon en privacy.
In de tuin is een Garage met eigen oprit aanwezig welke te bereiken is via de Pimpernel.
Bijzonderheden
Buitenruimte
De zuidgerichte tuin is een echt pluspunt. Hier kun je de hele dag van de zon genieten of ontspannen onder de veranda. De vrijstaande garage zorgt voor extra bergruimte en parkeermogelijkheden.
Bijzonderhden
• De woning is optimaal geïsoleerd. Het dak, de spouwmuren en de vloeren zijn geïsoleerd.
Rondom voorzien van houten kozijnen met HR beglazing.
• Verwarming en warm water middels een HR c.v.-combiketel (Nefit Proline, bouwjaar 2024).
• De achterzijde van de woning is voorzien van een houten veranda (2018).
Er is elektra aanwezig en de veranda kan met op maat gemaakte schermen worden afgesloten.
• In 2023 is de badkamer geheel gemoderniseerd. Hierbij is deze afgewerkt met een moderne lichte tegel en voorzien van een ruime inloopdouche, toilet en dubbele vaste wastafel welke geplaatst zijn op een badmeubel.
• De woning beschikt over mechanische ventilatie. Dit is geplaatst op de voorzolder bij de witgoedaansluitingen en de ketelopstelling.
• De (slaap-)kamer op de 2e verdieping is bereikbaar via een ruimtebesparende schuifdeur.
• De trap is in 2022 ook geheel gerenoveerd en bekleed.
• De keuken beschikt over de volgende inbouwapparatuur:
o Gaskookplaat
o Afzuigkap (2024)
o Combimagnetron (2024)
o Vaatwasser (2020)
o Koelkast
Plattegronden
177577075_1581272_marjo_begane_grond_first_design_20251002_f659d8.jpg
177577075_1581272_marjo_eerste_verdiepi_first_design_20251002_e7426a.jpg
177577075_1581272_marjo_tweede_verdiepi_first_design_20251002_cfcd5f.jpg
177577075_1581272_marjo_garage_first_design_20251002_f2c473.jpg